Design
Get it right the first time.
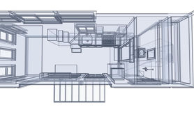
Visualizing a space can be difficult and making changes during construction can be expensive. With a complete custom design, you'll see exactly what the finished space will look like and be confident that the final product will be perfect for your needs. I'll work with you to develop a 3D model of your project along with floor plans, framing diagrams, detailed interior and exterior drawings and a complete materials list. You'll be able to:
-
Take a virtual tour with a video walkthrough
-
Edit everything, from framing to finishes
-
Try different configurations
-
Create a budget
-
Order materials ahead of time, avoid delays
Re-doing work, waiting on supplies, and wasted materials are time and budget killers. Investing in a custom design will save you time, money and frustration while ensuring your final product is beautiful, functional and safe
Check out an example of a video walkthrough:
Details that make a difference.
A truly great design is about so much more than aesthetics. The comfort, safety and efficiency of a structure are just as important but harder to see on screen and even harder to fix during construction.
Each custom design is created and reviewed to make sure nothing gets overlooked. As a designer I'm always looking for creative ways to use space and make your build more functional. As a builder, I'm able to look ahead to the construction phase to find ways to simplify your build and save money.
Examples:
-
Proper weight distribution
-
Efficient framing
-
Maximizing insulation
-
Proper Ventilation
-
Using stock size cabinets and doors
-
Minimizing wasted materials
-
Making plumbing and electric runs efficient
-
Considering clearances for comfort and safety

What you'll get:
-
Floor Plans
-
3D models
-
3D walkthrough videos
-
Framing Plan
-
Materials List
-
Cost Estimates
What to expect:
-
Schedule a free 30 minute introductory call to discuss your project.
-
If you decide to move forward we'll schedule a 1 hour consultation to go over your plans in more detail.
-
I'll start creating drafts, send them for review, revise them based on your feedback, and repeat this process until you're happy with the design.
-
Design work is billed hourly. You decide when the design is done.
To get started with your custom design, book an introductory call.
If you have questions or want to know more about the design process, please contact me.

























